LA RUSTICA TOR SAPIENZA VIA VALERICO LACCETTI

Roma - zona Tor Sapienza - la Rustica

Rif: LA RUSTICA
Condividi Linkedin Whatsapp Stampa
€ 315.000
Appartamento
110 Mq
4 Vani
Giardino 150 mq
Classe energetica G
2 Camere
2 Bagni
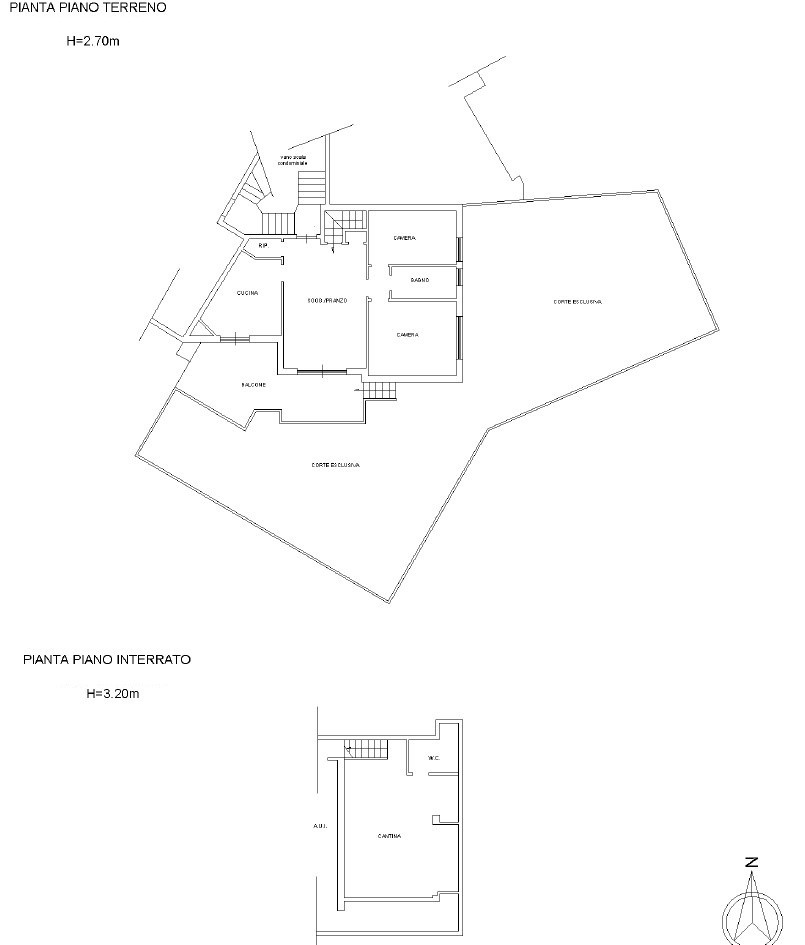
LA RUSTICA TOR SAPIENZA VIA VALERICO LACCETTI. IN ELEGANTE COMPLESSO CONDOMINIALE CHIUSO E CURATO PROPONIAMO APPARTAMENTO BILIVELLI CON GRANDE GIARDINO DI 150MQ COMPOSTO DA SALONE DUE CAMERE CUCINA ABITABILE BAGNO RIPOSTIGLIO. DALLA CUCINA E DAL SALONE SI ACCEDE AD UNA TERRAZZA ABITABILE CHE CONSENTE L'ACCESSO AL GRANDE GIARDINO ANGOLARE CURATO ED ATTREZZATO CON GIOCHI E AMPIA ZONA RELAX. TRAMITE UNA SCALA INTERNA ALLA CASA SI ACCEDE ALLA GRANDE SALA HOBBY ATTREZZATA CON CUCINA E BAGNO. COMPLETA ALA PROPRIETA' UN POSTO AUTO ESTERNO NELL'AREA CONDOMNIALE. EURO 315.000,00 CLASSE G IPE 175 - NB: TUTTE LE INFORMAZIONI IVI CONTENUTE COMPRESE LE METRATURE SONO DA INTENDERSI PURAMENTE A TITOLO INDICATIVO E NON COSTITUISCONO ELEMENTO CONTRATTUALE.
La Topcasa Immobiliare srl ha la propria sede a Roma in via Raffaele de Cesare 87/91, è presente sull'intero territorio nazionale tramite partners associati f. i. a. i. p. "federazione italiana agenti immobiliari professionali"; si avvale della collaborazione di personale altamente qualificato che dal 1983 opera nel settore immobiliare delle compravendite. VALUTAZIONI: valutazione gratuita in 48 ore se finalizzata alla vendita o alla locazione dell'immobile. STIME: perizia estimativa scritta, legalmente valida, e visura ipocatastale. SERVIZI: assistenza tecnico legale. La professionalità degli agenti immobiliari della Topcasa Immobiliare, tutti regolarmente iscritti, permette di fronteggiare sempre ogni situazione per fornire ai clienti una mirata assistenza in tutte le fasi dell'alienazione o locazione dell'immobile. LOCAZIONI: locazioni rispondenti alle leggi 431/98 e 392/78 ed alle recenti normative, per non incorrere in pesanti sanzioni o trovarsi in problematici conflitti con il conduttore. La Topcasa Immobiliare, costantemente attenta alle esigenze della clientela, si avvale della collaborazione di professionisti esterni avvocati, notai, architetti, commercialisti, geometri, visuristi. Promozione immobili sulle più importanti testate del settore e portali internet di rilevanza nazionale. Database clienti costantemente aggiornato. Clienti istituzionali interessati nell'acquisizione di interi stabili, in seguito venduti frazionatamente dopo eventuali interventi di ristrutturazione. Sottoscritto, tramite la f. i. a. i. p. una convenzione operativa con primari istituti bancari."

Dettaglio immobile

Contratto Vendita
Rif LA RUSTICA
Prezzo € 315.000
Provincia Roma
Comune Roma
Zona Tor Sapienza - la Rustica
Indirizzo Via Valerico Laccetti 24
Superficie 110 mq
Vani 4
Camere 2
Bagni 2
Classe energetica G (DL 90/2013)
EPgl,nren 175 kwh/m2 anno
Riscaldamento autonomo
Condizioni ottime condizioni
Spese condominiali € 110
Anno di costruzione 1995
Ascensore no
Parcheggio 13 mq
Giardino 150 Mq
Cucina abitabile
Taverna si
Terrazza si

Consistenze

Descrizione Superficie Sup. comm.
Principali
Immobile - piano terra 110 Mq 110 Mqc
Accessorie
Posto auto 13 Mq 4 Mqc
Giardino/Resede 150 Mq 15 Mqc
Totale 129 Mqc

Video

Planimetrie

Richiedi maggiori informazioni

Autorizzazione al trattamento dei dati personali+
Dichiaro di aver letto l'informativa sulla privacy ed accetto le condizioni d'utilizzo del servizio.
Riempi il campo con il codice riportato nell'immagine*
Codice Captcha
Chiamaci Contattaci